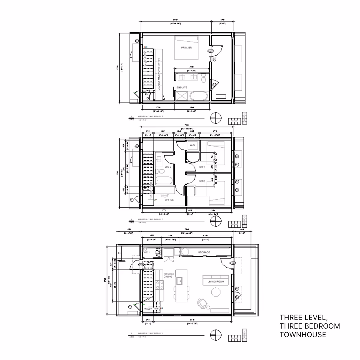
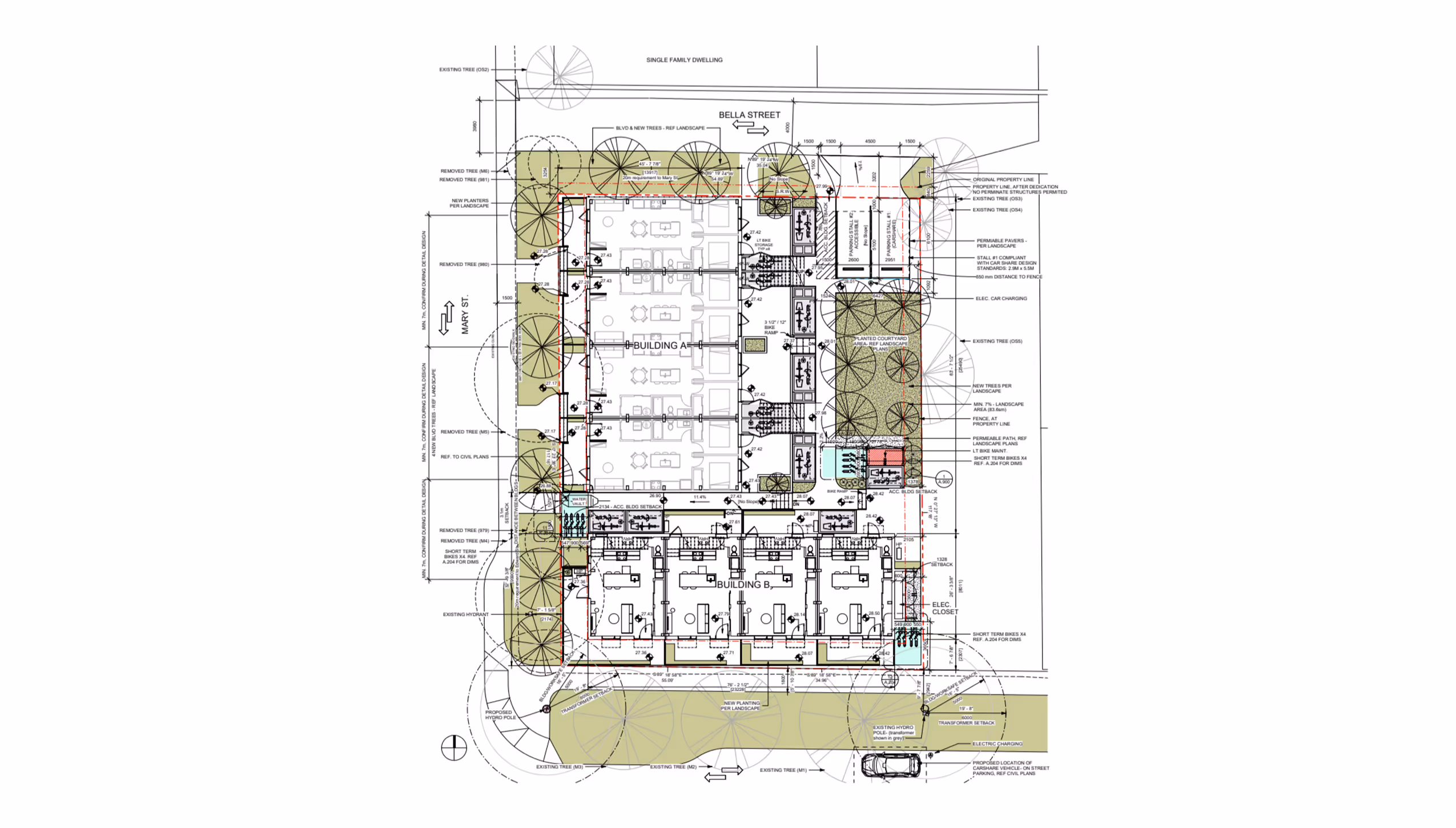
The Vic West Townhome project adds 12 units of family oriented housing to the Vic West Community. Three unit types (stacked 2 and 3 bedroom units and traditional ground oriented 3 bedroom row houses), provide residents with functional layouts around a common courtyard space. This ground oriented development puts bike transportation at its forefront, providing residents with 'bike-garages' built to accommodate bikes of all shapes and sizes.



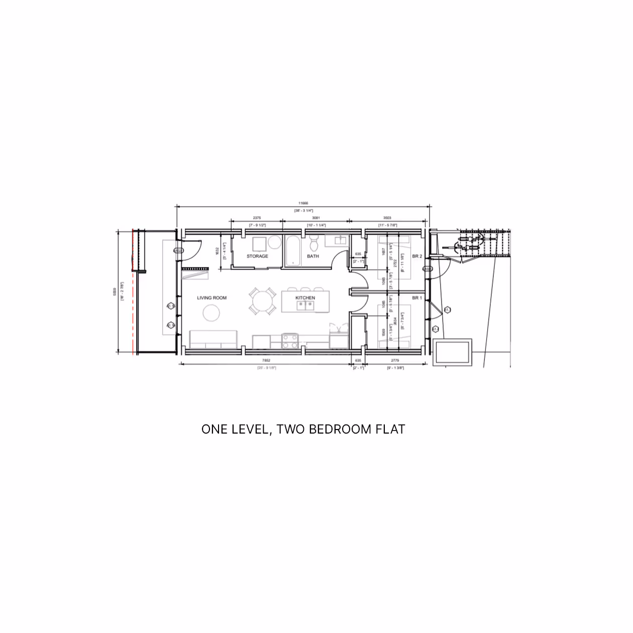
3 different unit layouts provide comfortable yet efficient spaces for families, couples or multi-generational communities. 9' ceilings and large windows flood the units with light, while windows on all sides of the building amplify cross ventilation. Stoops, balconies and large patios provide many opportunities for residents to connect together, and with the community at large.



A common courtyard space with bike maintenance facility and car-sharing promotes community building between residents. Permeable landscaping, native plants and fruit trees provide privacy and shady areas for residents to congregate.

This project is currently pursuing a building permit with expected completion in 2026.
Client: SKALE Properties
Architect: Fold Architects Inc
Concept Design: Blend Projects
Structural: RJC Engineering
LandscapeBiopheliaDesign