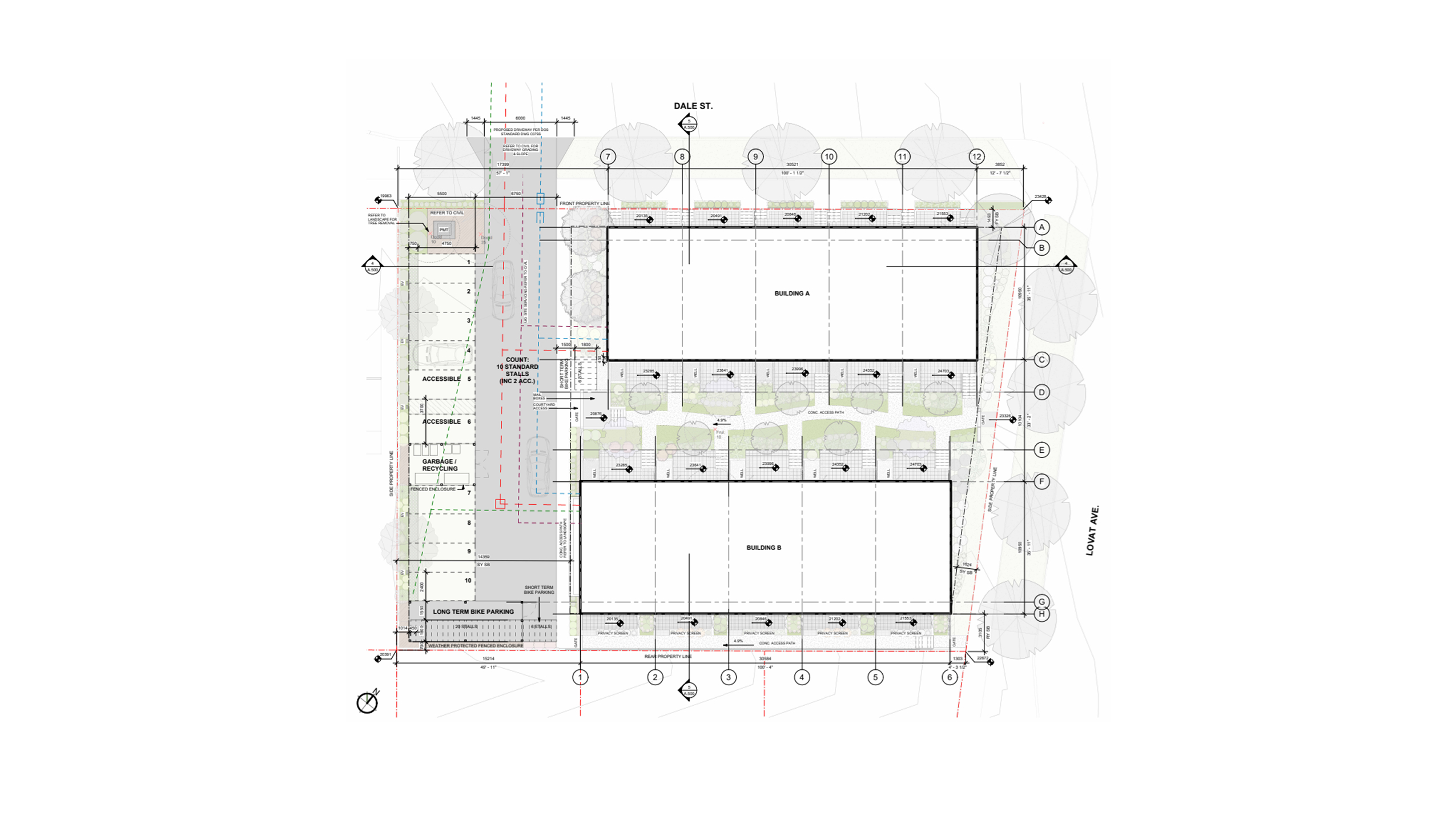
This multi-family townhome project was concieved out of the need for family-focused housing, in the growing district of Saanich. 20 units of stacked townhomes flank a sloped site, creating a courtyard area between both buildings that services as a community outdoor space.
Ten 3 bedroom units are stacked over ten 2 bedroom units; providing an efficient and cost effective development for the neighbourhood. The stepped siting and multi-gable design of the project provides the neighbourhood with a development in scale with adjacent single family homes. The development is focused on multigenerational spaces- lower units are oriented towards the street and side yard, to provide privacy to empty nester’s or new owners entering the market, while the three bedroom upper units orient towards the courtyard, offering children a space to play and parents a space to connect.
This project is currently undergoing Rezoning.



Developer: Large & Co
Architect: Fold Architects Inc
Civil Engineering: Islander Engineering
Landscape Design: LADR