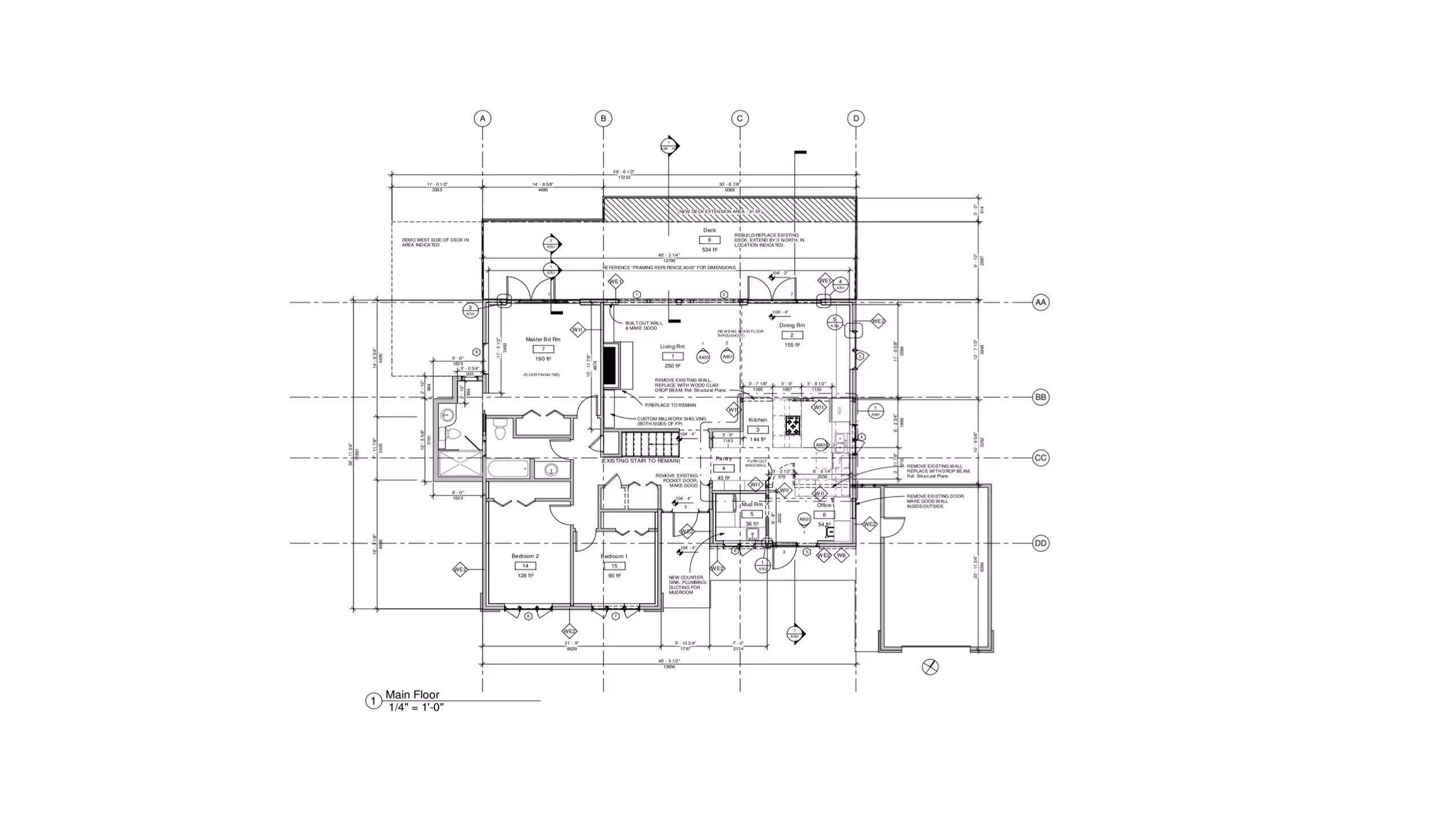
Our clients wished to upgrade their 1040’s rancher by improving the energy performance of the envelope, adding more light and functionality to their kitchen, and connecting main areas of the home to the magnificent ocean view. Fold provided a retrofit envelope design, and worked with the existing structural design to open up the kitchen and dining space. The result is an energy efficient, modern, functional, open-plan home, filled with light.




.avif)



Key aspects of the project were improving the airtightness of the envelope, doubling the R value of the walls, and changing the heat source to a ducted heat pump. Although the roof and ceiling remained intact, air sealing of the walls and penetrations improved air leakage by over 2 air changes per hour, and the annual energy use of the home was reduced by over 65%; the home now uses 25% less energy than a typical new house.



To increase the thermal efficiency of the home, we designed a double stud assembly, sistering up the existing 2x4 wall to a new one. Existing windows were replaced with triple glazed units and airtightness was improved by applying a vapour permeable airtight membrane between studs.





Client: Private
Architecture: Fold Architects Inc
Contractor: Hoffmann Construction
Photography: James Jones Photography