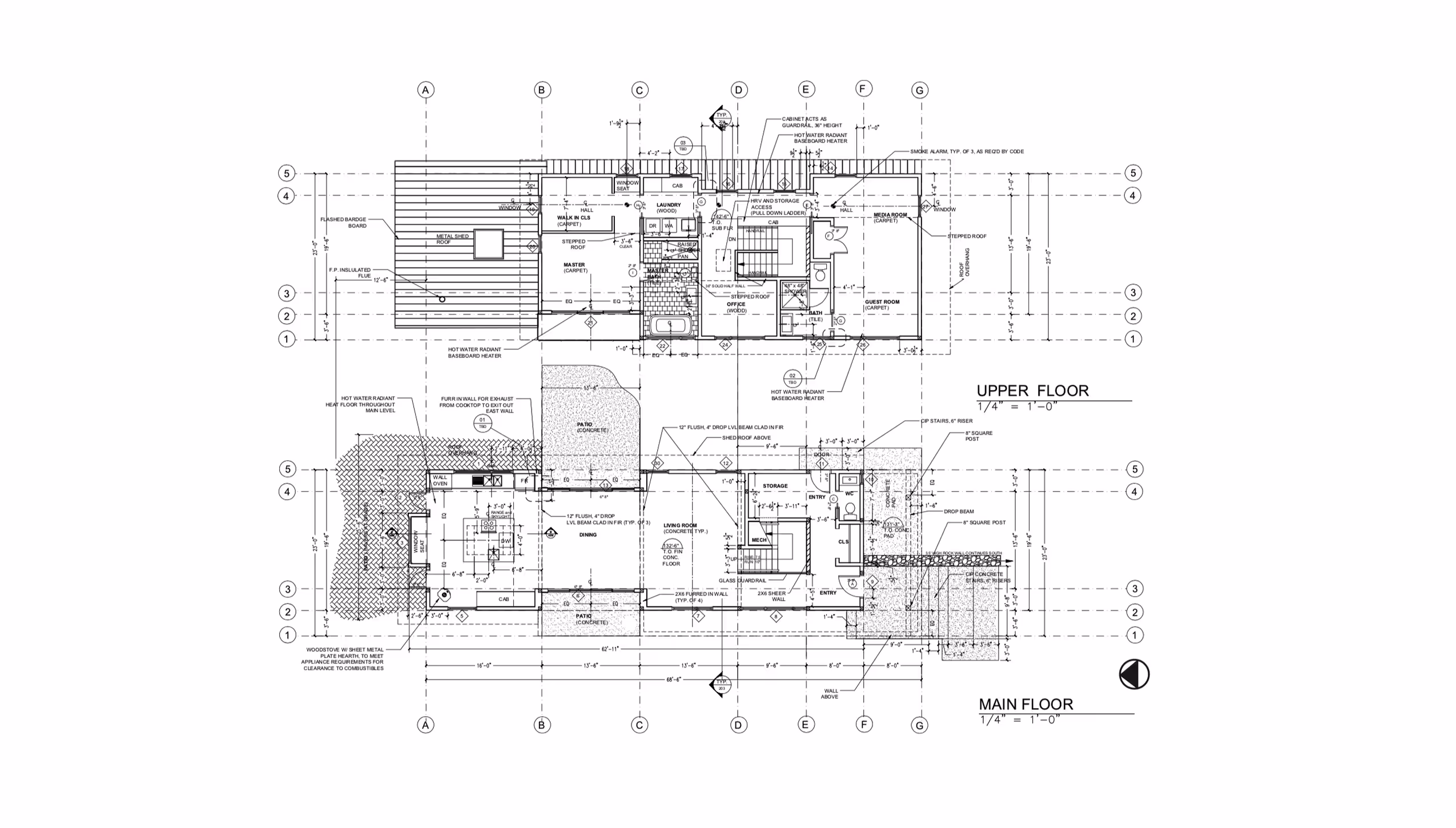
A custom home in North Saanich BC blends economy, scale, function, and livability, with a context-focused approach to siting. The architecture of this custom home references the farmhouse vernacular, reinterpreted through a modern lens. It incorporates simple materials expressed in new ways and brings the 'outside in,' through carefully considered views.




This modern farmhouse on southern Vancouver Island is defined by the site’s dual character: pastoral fields and orchards on one side, and rugged rocky outcrops with ocean valley views on the other. An in-depth site study led Fold to position the home at the center, stretching a typical footprint to a 20' by 80' box, and establishing the house as a 'threshold' between the two landscapes. The design references a traditional farmhouse vernacular, reinterpreted through a modern lens; with simple materials expressed in fresh ways.





The Clients asked for a simple, functional, floor plan with flexible spaces for visiting family and a strong connection to the land and garden. The house captures individual views through large windows, connecting the open plan to distinct trees and views across the landscape. Parallel sets of sliding doors connect both sides of the dining room to each side of the property, emphasizing a 'second visual axis.'





We created strong site lines through the house to highlight the elongated form, anchored by a large Garry Oak at the north end of the kitchen. We finished the house with modern, simple details and used knotty western red cedar in clear and whitewashed stains, to create a textured "clapboard" feel, with a distinct coastal look.



.jpg)





Owner: Withheld
Architect: Fold Architects Inc
Interior Design: Fold Architects Inc / Client
Structural: Island Structural Engineering
Construction: Southall's Construction
Photography: James Jones Photography