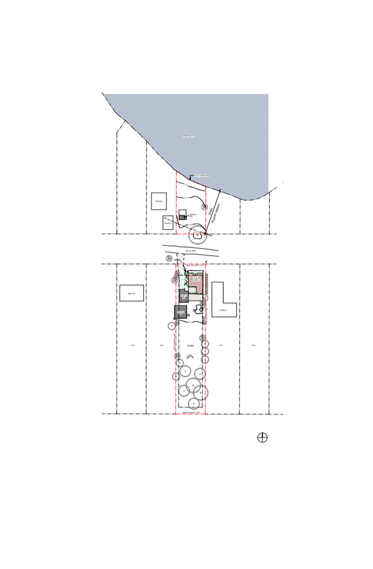
Long time Shawnigan Lake residents wished to renovate their home to allow them to age-in-place, while increasing the thermal efficiency and environmental resiliency of their home. They envisioned a living space that would seamlessly connect both sides of their property— on the North, views of a majestic fir tree (and the lake beyond), and the south; a sunlit, south-facing gardens.




Although the owners loved the feel of their existing cabin, it had been built in the 50's as a 'trapper's' cabin, with structural systems and foundations that were inadequate to meet today's safety standards. The crawlspace flooded on occasion and the insulation of the existing walls were insufficient for Shawnigan winters. Further influenced by complex zoning conditions it became clear a renovation of the existing structure would not suite the future needs of the clients.

.jpg)
.jpg)
.jpg)
.png)
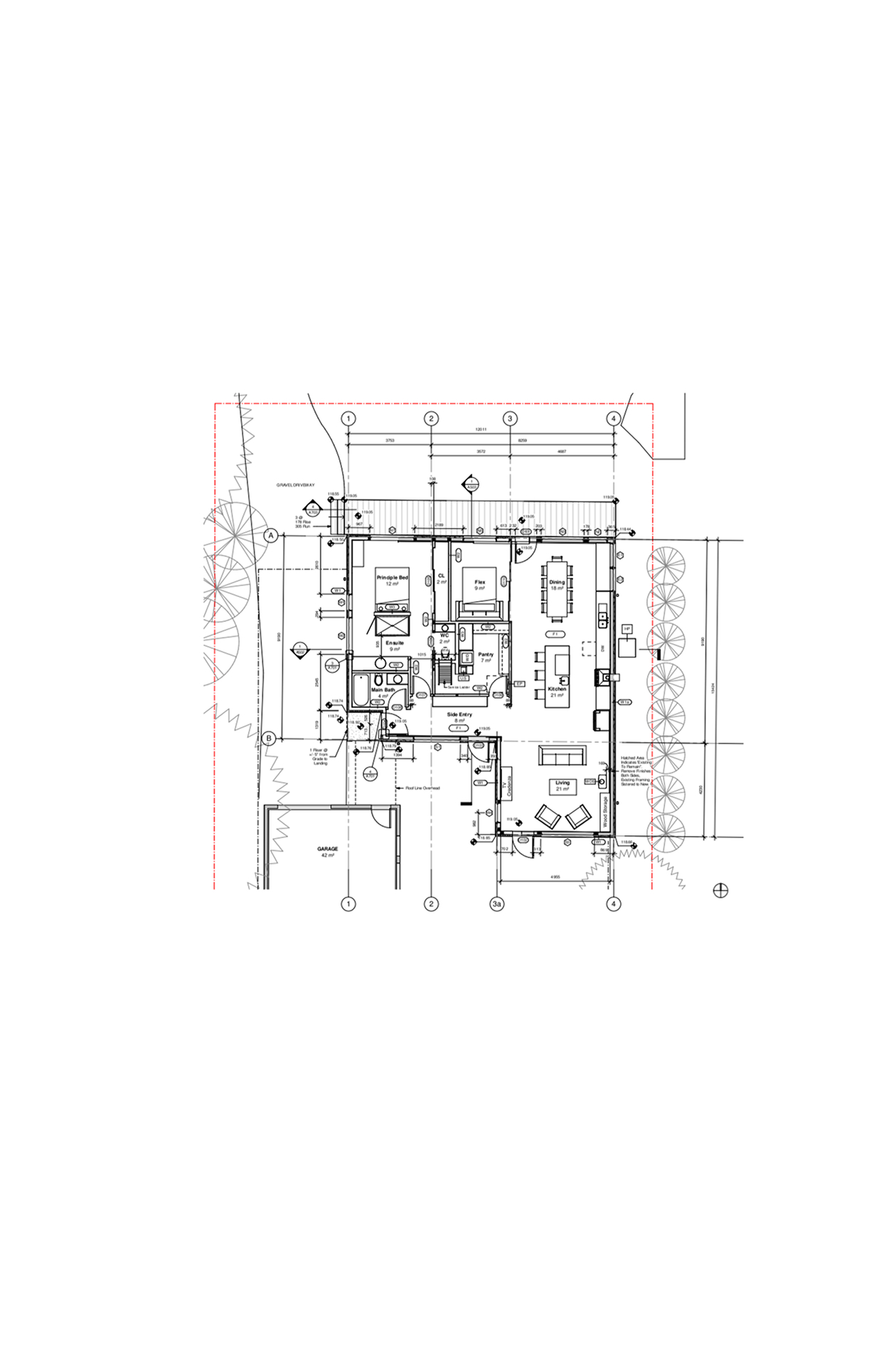
Instead, Fold redesigned the home from the foundation up, integrating many of the much-loved design elements from the original home. Highlighting the client's unique and personal art collection became an important priority: to emphasize this Fold designed a randomized window pattern, using each window to ‘frame’ the surrounding landscapes as a unique work of art. This patchwork of vista's captures unique snap shots of the surrounding natural environment, connecting the residents directly with the beauty of the seasons as they change.
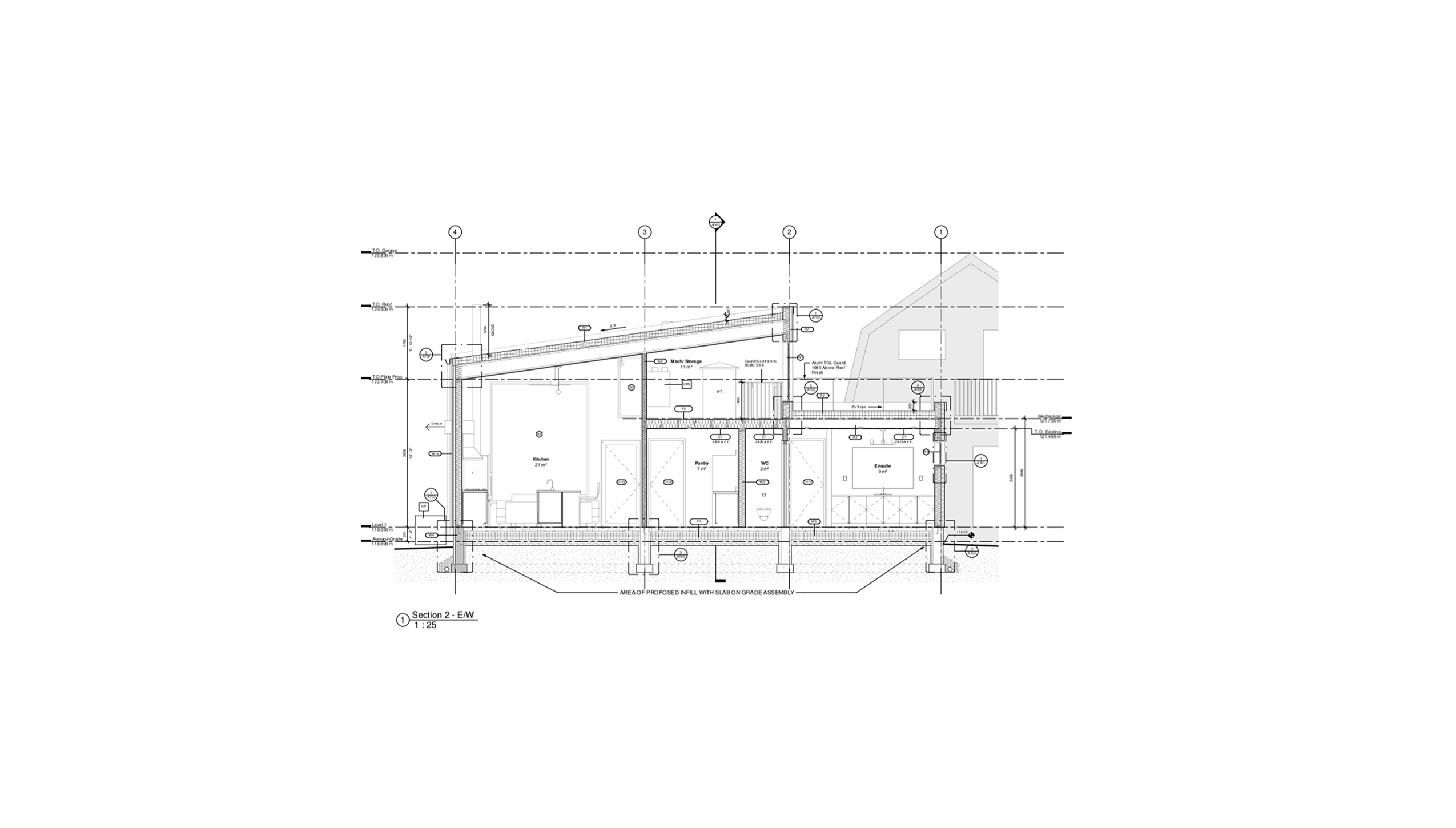
Interior design was driven by a compact and 'age-in-place' friendly floor plan with special care taken to the integrated primary suite, where the bedroom and ensuite blend into a single space, making the 300sf footprint appear larger than it should.
sm.png)
sm.png)
sm.png)
.jpg)
.jpg)


Though the project did not pursue Passive House Certification, the general principles were applied in all aspects. Fold modelled and targeted energy improvements, then designed the envelope using a hybrid wall assembly, extra thick under-slab insulation, and and exterior insulated roof. The improved envelope, combined with a heat pump and heat recovery system keep the home warm (and cool) through the most Shawnigan weather events. The extensive fenestration increases natural light and cross ventilation, ensuring the residents a healthy, comfortable, resilient home for many years to come.

.jpg)
.jpg)

.jpg)
.jpg)
.jpg)
Owner: Withheld
Architect: Fold Architects Inc
Interior Design: Fold Architects Inc
Structural: Farhill Engineering
Construction: Hygge Design
Photography: Dasha Armstrong Photography