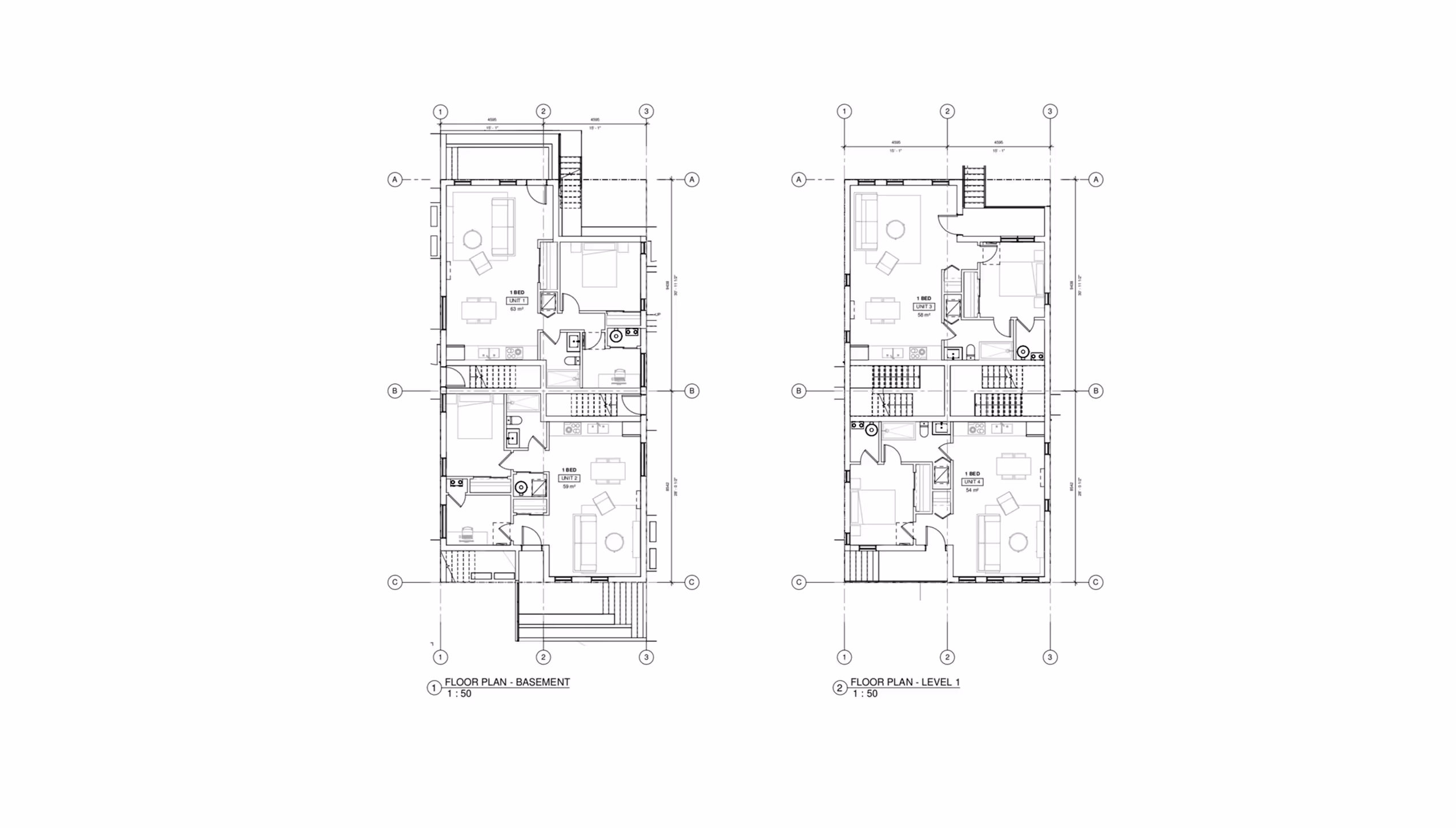
Royal Jubilee Houseplex project replaces one single family home with six ground-oriented suites, including two suites with three bedrooms suitable for families. The project sets a precedent for development serving the ‘missing middle’, a category of attached housing in scale with single family neighbourhoods.



.avif)
.avif)
.avif)
Each suite has a private entrance with outdoor living space and shared access to a common outdoor shelter for cooking and socializing. Reverse plans on 3 bedroom units move the main living spaces to the upper levels to take advantage of the views beyond. A key objective of the project was to break down the building’s scale in relation to its surroundings, by introducing distinct zones along the façade that reflect individual suites. This approach adds character and texture to the overall form.
The project is targeting Step 4 of the BC Energy Step code, a goal that is easily achieved without increasing wall thickness and insulation, due to the compact and regular building form. The houselex is designed in substantial conformance with municipal zoning regulations that permit infill development without rezoning provided key requirements are met.



A soft, muted colour palette, combined with the varied texture and patterning of metal cladding, wood, and perforated screen, enhances the architectural expression of the building, without overwhelming the eye with high-contrast patterns. The material pallet is both economical and low maintenance, ensuring a resilient building in Victoria’s coastal climate.




Developer: Cascara Construction
Architect: Fold Architects Inc
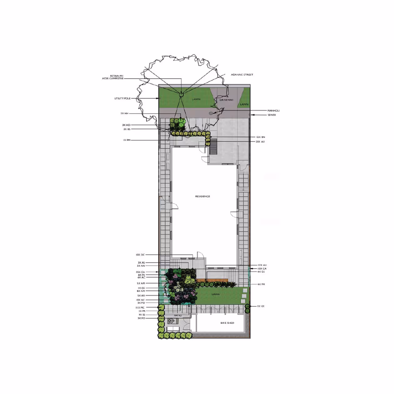
Landscape: Greenspaces
Civil: EK Engineering
Structural: EK Engineering
Electrical: Parallel Engineering
Construction: Cascara Construction